- Home
- Buy a Home Orlando, FL Home Search
- Sell A Home Sell my Home in Orlando, FL
- Property Management Professional Residential Property Management and Leasing Services in Orlando, FL
- About
- Contact Contact Us at Metro City Realty
- Blog




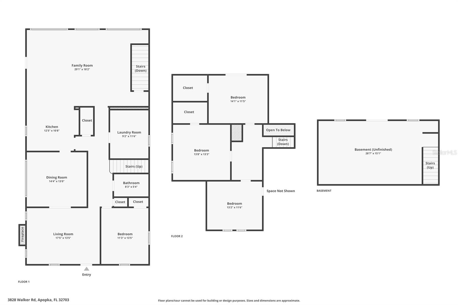
C2 Zoning + Residential | Price Adjustment | Rare Lakefront Opportunity on Lake Apopka Price adjustment reflects seller motivation and creates an outstanding opportunity to acquire a rare lakefront property on Lake Apopka with C2 commercial zoning and residential use. This unique combination allows for a wide range of potential uses, making it ideal for investors, owner-operators, or buyers with a long-term vision. The property features a classic lakefront home with strong character, including an updated kitchen with a large center island, three ovens, ample storage, and real wood flooring. A walk-out basement adds flexibility, while the main level includes one bedroom and one full bathroom. The second floor offers three additional bedrooms. A central HVAC system is installed but not currently operational; the home is currently cooled with window units. The shingle roof was replaced in 2016, while the flat roof will likely need replacement. Electrical and plumbing updates will be needed, presenting a clear value-add opportunity for the right buyer. Additional improvements include an enclosed carport/garage, chicken-breeding coops, and a private dock, enhancing both lifestyle appeal and future development potential.
| a month ago | Listing updated with changes from the MLS® | |
| a month ago | Price changed to $699,000 | |
| 2 months ago | Listing first seen on site |
Compare listings
ComparePlease enter your username or email address. You will receive a link to create a new password via email.
Did you know? You can invite friends and family to your search. They can join your search, rate and discuss listings with you.